Ter. residenziale in vendita

Cagliari, via Barracca Manna - Barracca Manna
€ 180.000
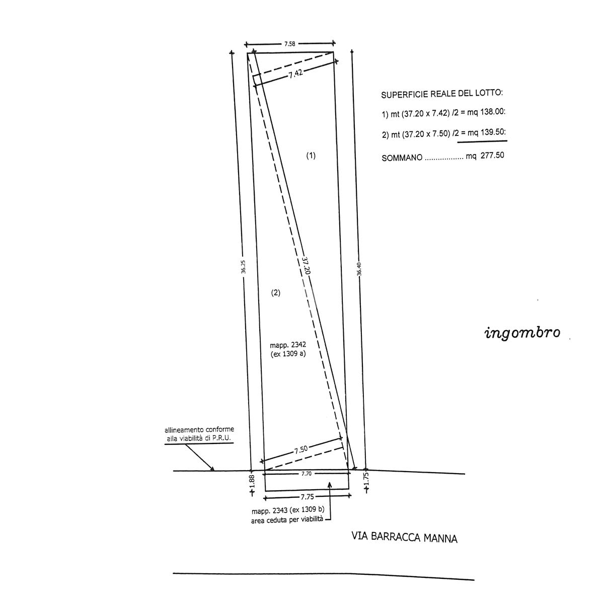
277 Mq 277 Mq

Ter. residenziale in vendita

Cagliari, via Barracca Manna - Barracca Manna

Descrizione annuncio

Ci troviamo in Via Barracca Manna 34, nel cuore dell’omonimo quartiere residenziale di Cagliari, una delle zone più richieste della città grazie alla tranquillità del contesto e alla vicinanza con i principali collegamenti stradali e il centro del Capoluogo.

Proponiamo in vendita un terreno residenziale di 277 mq, posizionato in un punto rialzato che garantisce una splendida vista panoramica.

Il lotto consente la realizzazione di un fabbricato fino a 500 mc, offrendo un’ottima opportunità per chi desidera costruire la propria abitazione personalizzata in un’area in forte espansione.

Contattaci subito per maggiori informazioni.

Tecnocasa Barraccamanna – Is Corrias

Mostra tutto

Nelle vicinanze

Trasporto pubblico Trasporto pubblico
Monserrato
Monserrato
2,5 Km
Caracalla
Caracalla
1,3 Km
Centro Commerciale
Centro Commerciale
1,6 Km
Trasporto pubblico
320 m
Santa Maria Chiara (ang. via Balilla)
Santa Maria Chiara (ang. via Balilla)
1,2 Km
Scuole Scuole
Scuole
330 m
Scuole Elementari Statali
360 m
Liceo Classico Euclide
650 m
Scuola Media
700 m
Liceo Scientifico Euclide
750 m
Farmacia Farmacia
Parafarmacia Conad
1,1 Km
Dottor Fasciolo
1,2 Km
Farmacia
1,3 Km
Farmacia Dott. Orrù
2,5 Km
Farmacia Popolare
2,7 Km
Ospedali Ospedali
Ospedale Microcitemico
870 m
Ospedale Oncologico "Armando Businco"
990 m
Ospedale San Michele
1,0 Km
Pronto Soccorso
1,1 Km
Policlinico Universitario "Duilio Casula"
2,0 Km
Supermercati Supermercati
EuroSpin
470 m
Conad
620 m
Conad Superstore
1,1 Km
Nonna Isa
1,2 Km
Super Pan
1,4 Km
Negozi Negozi
Metà
1,9 Km
Market e Panificio
2,1 Km
Pizzeria Forno Napoletano
2,3 Km
I Cherchi
2,4 Km
L'angolo dei sapori
2,4 Km
Bar Bar
Bar
1,3 Km
Bar Lobina
1,7 Km
Bar Nobel
2,4 Km
Coco
2,6 Km
Alex Bar
2,6 Km
Ristoranti Ristoranti
Evelyn Pizza
1,0 Km
Il Volo
1,3 Km
Quadrifoglio Restaurant
1,3 Km
Ristoranti
1,3 Km
Time Out
1,6 Km
Mostra tutto

Caratteristiche

Rif.:
61102342
Piano:
Terra
Condizionamento:
Assente
Ascensore:
No
Riscaldamento:
Assente
Giardino:
Privato
Mostra tutto
Prezzo Prezzo
€ 180.000
Rata mutuo Rata mutuo
€ 848 / mese
Proponi il tuo prezzoProponi il tuo prezzo

Altre caratteristiche

Classe Energetica

Questo immobile è esente da classe energetica
Riscaldamento:
Assente

Ti interessa visionare l'immobile?

Fissa un appuntamento  Fissa un appuntamento

Richiedi informazioni

Clicca su Leggi per aprire l'informativa
* Questi campi sono obbligatori

Calcola il tuo mutuo

Semplice e senza impegno
Anticipo

( % )
Mutuo

( % )

pochi semplici passi

inserisci i tuoi dati
Questionario completato
Grazie per aver richiesto un appuntamento senza impegno con un nostro Consulente del Credito e Assicurativo.

Hai inserito correttamente tutti i dati necessari e a breve riceverai una e-mail con un link da convalidare per inviare i tuoi dati.
Affiliato
La Collina Mediazioni Srl
Via Chiesa, 2 09134 Cagliari (CA)

Il nostro staff


  • Laura Francesca Bovenzi
    Collaboratrice

  • Beatrice Desogus
    Collaboratrice

  • Michele Medau
    Collaboratore

  • Alessio Murru
    Collaboratore

  • Annamaria Solinas
    Coordinatrice

  • Daniel Medau
    Affiliato
Via Chiesa, 2 09134 Cagliari (CA)
Zona: Barraccamanna is Corrias
Mostra su mappa
Affiliato
La Collina Mediazioni Srl
Via Chiesa, 2 09134 Cagliari (CA)

2026 Tecnocasa Franchising S.p.A. - P. IVA 08365160152 - Via Monte Bianco 60/A 20089 Rozzano (MI). Ogni agenzia ha un proprio titolare ed è autonoma. Privacy policy | Policy utilizzo | Cookie policy