Porzione di bifamiliare in vendita

Cagliari, Via Serafino Esquirro - Barracca Manna
€ 345.000
3 locali 3 locali
93 Mq 93 Mq
2 bagni 2 bagni

Porzione di bifamiliare in vendita

Cagliari, Via Serafino Esquirro - Barracca Manna

Descrizione annuncio

Ci troviamo nel quartiere cagliaritano di Barracca Manna, che offre tranquillità e praticità grazie al suo rapido collegamento con le maggiori strade di percorrenza dell'hinterland e il centro città, pur rimanendo in contesto riservato residenziale.

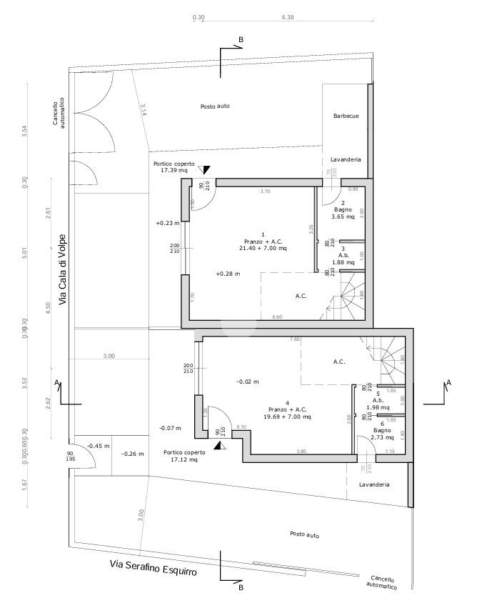
Proponiamo in vendita due soluzioni indipendenti in corso di costruzione.

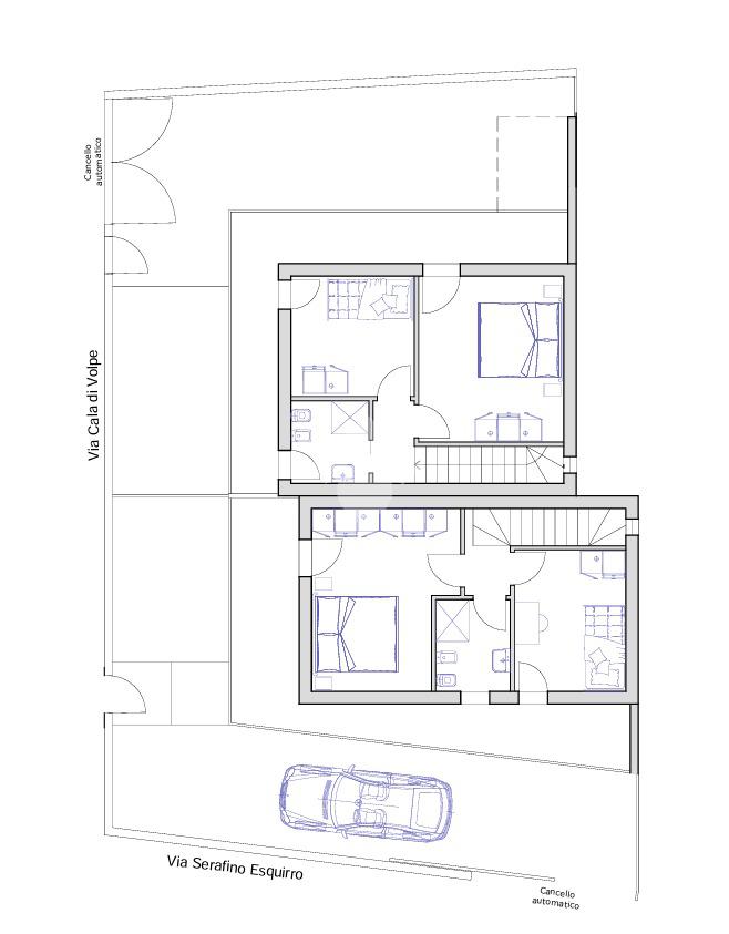
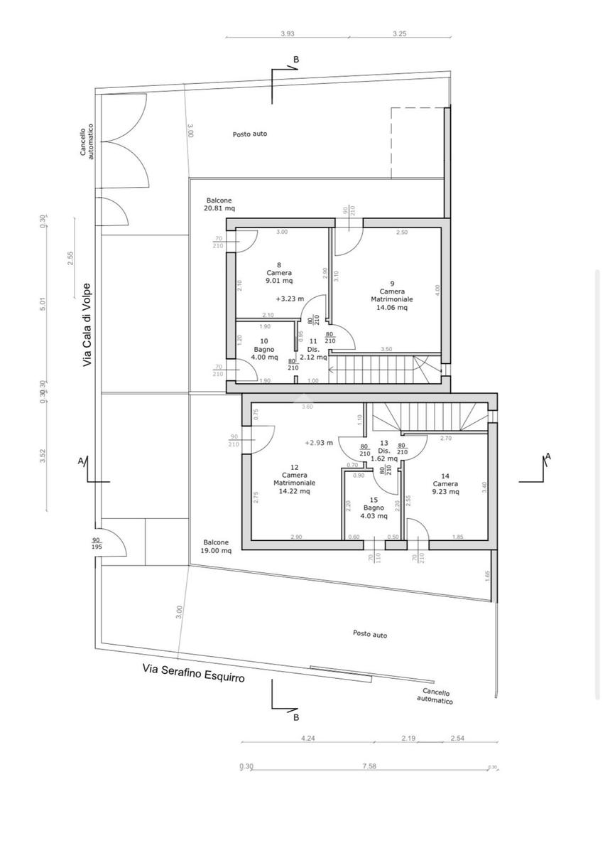
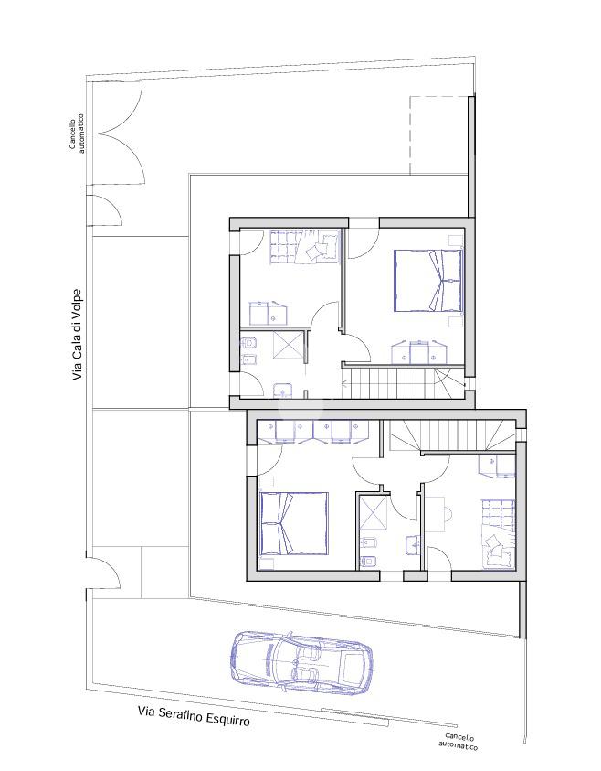
Gli immobili, sviluppati su due livelli, ci accolgono al piano terra su una zona giorno con angolo cottura e un primo bagno con antibagno. Tramite scala interna accediamo invece al primo piano, dove un disimpegno ci conduce su tutti gli altri ambienti: una camera da letto matrimoniale, una camera singola e un secondo bagno.

Completano queste moderne soluzioni dei balconi su due lati, un giardino ad uso esclusivo e un posto auto di proprietà.

Gli immobili, dalle rifiniture di alta qualità con possibilità di personalizzazione presentano inoltre le seguenti peculiarità:
-impianto di climatizzazione con split in tutti gli ambienti
-impianto fotovoltaico da 3 kw
-solare termico a circolazione forzata
-Nuos di accumulo integrato con solare termico per produzione di acqua calda sanitaria da fonti rinnovabili
-antifurto volumetrico e perimetrale con telecamere
-infissi in pvc con tapparelle elettriche a controllo centralizzato

Tutti gli impianti sono gestibili da remoto tramite app installabile sul proprio cellulare.

Contattaci per maggiori informazioni.

Tecnocasa Barraccamanna - Is Corrias

Mostra tutto

Nelle vicinanze

Trasporto pubblico Trasporto pubblico
Monserrato
Monserrato
1,7 Km
Caracalla
Caracalla
760 m
Redentore
Redentore
950 m
Porto Botte (ang. via Scevola)
Porto Botte (ang. via Scevola)
550 m
Porto Botte (ang. via Aritzo)
Porto Botte (ang. via Aritzo)
610 m
Scuole Scuole
I.P.S.A.R. Antonio Gramsci Monserrato
450 m
Istituto Professionale "B. Cellini"
540 m
Scuola Media
560 m
Scuole
770 m
Scuole Elementari Statali
810 m
Farmacia Farmacia
Farmacia
720 m
Parafarmacia Conad
1,3 Km
Dottor Fasciolo
1,3 Km
Parafarmacia
2,6 Km
Farmacia Avataneo
2,9 Km
Ospedali Ospedali
Policlinico Universitario "Duilio Casula"
1,6 Km
Ospedale Microcitemico
1,6 Km
Pronto Soccorso
1,6 Km
Ospedale Oncologico "Armando Businco"
1,7 Km
Ospedale San Michele
1,8 Km
Supermercati Supermercati
Conad City
980 m
Nonna Isa
1,1 Km
Maxi Sidis
1,2 Km
EuroSpin
1,2 Km
Conad
1,2 Km
Negozi Negozi
I Cherchi
1,6 Km
Pizzeria Forno Napoletano
1,7 Km
Negozi
1,7 Km
Metà
1,9 Km
Clothes for babies
2,6 Km
Bar Bar
Bar
1,1 Km
Bar Lobina
2,3 Km
Coco
2,4 Km
Bar Nobel
2,7 Km
Red Rocks cafe
3,0 Km
Ristoranti Ristoranti
Time Out
980 m
Ristoranti
1,6 Km
Quo Vadis
1,7 Km
Il Volo
1,8 Km
Evelyn Pizza
1,8 Km
Mostra tutto

Caratteristiche

Rif.:
61091715
Piano:
1 di 2 (Piano su più livelli)
Posti auto:
2
Balconi:
2
Camere da letto:
2
Arredamento:
Assente
Mostra tutto
Prezzo Prezzo
€ 345.000
Rata mutuo Rata mutuo
€ 1.635 / mese
Spese annue Spese annue
€ 0
Proponi il tuo prezzoProponi il tuo prezzo

Classe Energetica

A4
A4
A4
A4
A4
A4
A4
A4
A4
EP invernale del fabbricato:
EP estiva del fabbricato:
Anno di costruzione:
2025
Riscaldamento:
Autonomo
Tipo impianto:
Ad aria
Tipo alimentazione:
Altro

Ti interessa visionare l'immobile?

Fissa un appuntamento  Fissa un appuntamento

Richiedi informazioni

Clicca su Leggi per aprire l'informativa
* Questi campi sono obbligatori

Calcola il tuo mutuo

Semplice e senza impegno
Anticipo

( % )
Mutuo

( % )

pochi semplici passi

inserisci i tuoi dati
Questionario completato
Grazie per aver richiesto un appuntamento senza impegno con un nostro Consulente del Credito e Assicurativo.

Hai inserito correttamente tutti i dati necessari e a breve riceverai una e-mail con un link da convalidare per inviare i tuoi dati.
Affiliato
La Collina Mediazioni Srl
Via Chiesa, 2 09134 Cagliari (CA)

Il nostro staff


  • Laura Francesca Bovenzi
    Collaboratrice

  • Beatrice Desogus
    Collaboratrice

  • Giorgia Locci
    Coordinatrice

  • Michele Medau
    Collaboratore

  • Annamaria Solinas
    Collaboratrice

  • Daniel Medau
    Affiliato
Via Chiesa, 2 09134 Cagliari (CA)
Zona: Barraccamanna is Corrias
Mostra su mappa
Affiliato
La Collina Mediazioni Srl
Via Chiesa, 2 09134 Cagliari (CA)

2026 Tecnocasa Franchising S.p.A. - P. IVA 08365160152 - Via Monte Bianco 60/A 20089 Rozzano (MI). Ogni agenzia ha un proprio titolare ed è autonoma. Privacy policy | Policy utilizzo | Cookie policy