Villa a schiera in vendita

Cagliari, Via Eugenio Montale - Barracca Manna
€ 280.000
4 locali 4 locali
96 Mq 96 Mq
2 bagni 2 bagni

Villa a schiera in vendita

Cagliari, Via Eugenio Montale - Barracca Manna

Descrizione annuncio

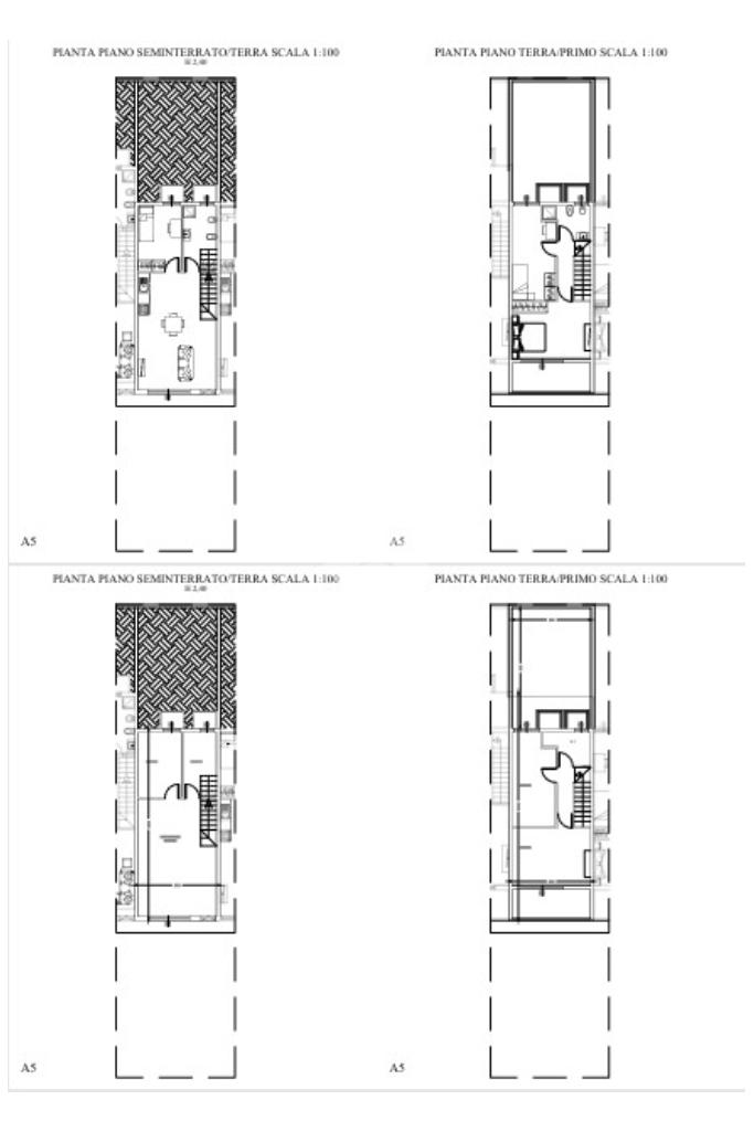
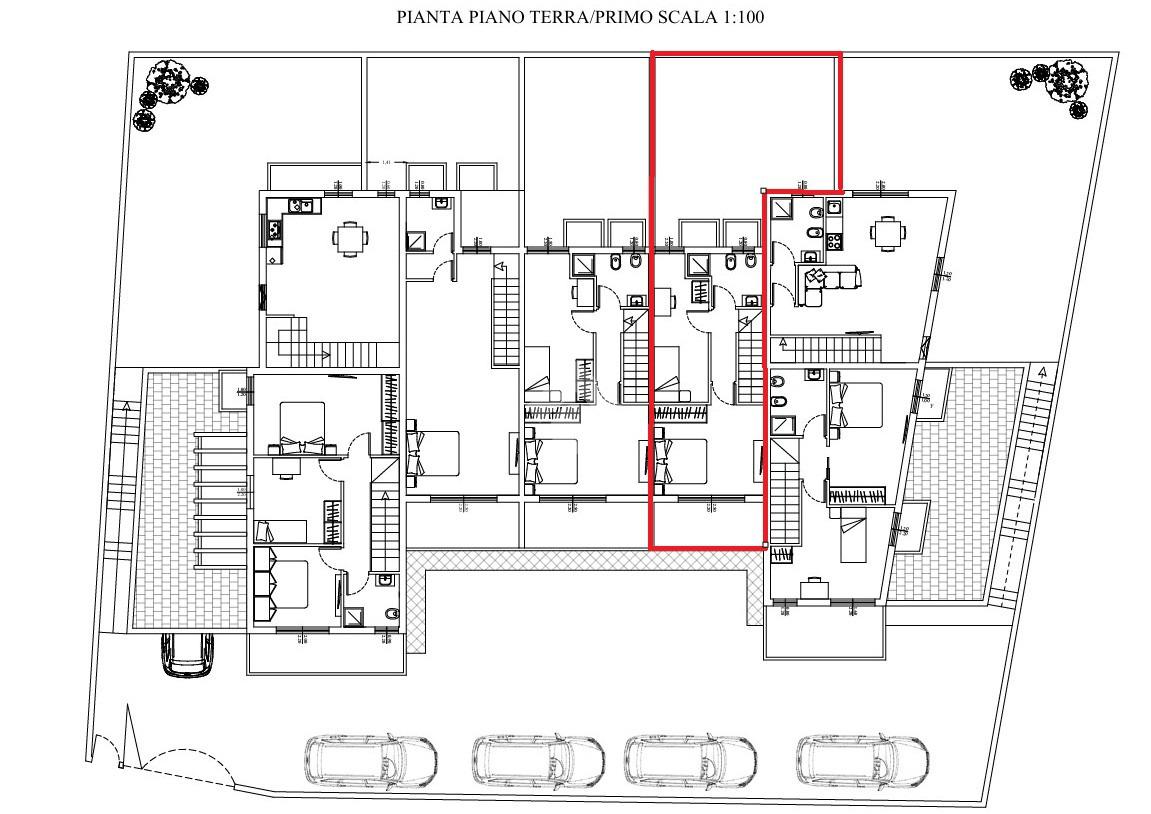
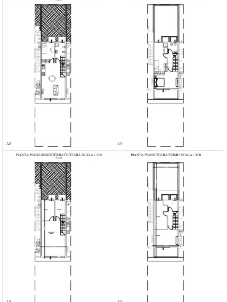
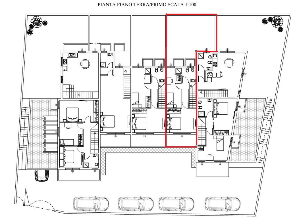
Interno 5: villetta a schiera centrale con giardino e posto auto

In contesto residenziale tranquillo e ben organizzato precisamente in Via Eugenio Montale a Cagliari, proponiamo sette villette in corso di costruzione, progettate secondo i più moderni criteri di sicurezza, comfort abitativo ed efficienza energetica.

Le abitazioni sorgeranno all’interno di un nuovo cantiere curato in ogni dettaglio, con soluzioni costruttive di qualità e materiali selezionati da capitolato di 'Iter di Ruggeri' per garantire durabilità, prestazioni elevate e bassi costi di gestione.

Caratteristiche principali:

-Strutture realizzate nel pieno rispetto delle normative antisismiche vigenti

-Ottimo isolamento termico e acustico, per un elevato comfort in tutte le stagioni

-Impianti di nuova generazione, progettati per efficienza, funzionalità e risparmio energetico

-Ambienti interni luminosi, razionali e pensati per la vita quotidiana

-Finiture moderne e di qualità, con possibilità di personalizzazione secondo capitolato

-Spazi esterni ideali per relax, vita all’aperto e famiglie con bambini.

Le villette sono concepite per offrire un’elevata qualità della vita, combinando tecnologia costruttiva, estetica contemporanea e attenzione al dettaglio, in un contesto residenziale ordinato e riservato.

Ideali per:

-Famiglie in cerca di una prima casa nuova

-Chi desidera una soluzione indipendente con spazi esterni

-Clienti attenti a efficienza energetica e comfort abitativo

-Investimento immobiliare di valore nel tempo

Contattaci per maggiori informazioni e disponibilità di approfondimento in ufficio. Un’opportunità unica per vivere il comfort di una casa nuova, costruita per durare.

Tecnocasa Barraccamanna - Is Corrias

Mostra tutto

Nelle vicinanze

Trasporto pubblico Trasporto pubblico
Monserrato
Monserrato
2,8 Km
Caracalla
Caracalla
1,5 Km
Centro Commerciale
Centro Commerciale
1,8 Km
Trasporto pubblico
240 m
Peretti (uffici ASL)
Peretti (uffici ASL)
1,1 Km
Scuole Scuole
Liceo Classico Euclide
400 m
Scuole
460 m
Scuole Elementari Statali
470 m
Liceo Scientifico Euclide
490 m
Scuola Media
900 m
Farmacia Farmacia
Parafarmacia Conad
980 m
Dottor Fasciolo
1,2 Km
Farmacia
1,4 Km
Farmacia Dott. Orrù
2,4 Km
Farmacia Popolare
2,4 Km
Ospedali Ospedali
Ospedale Microcitemico
650 m
Ospedale San Michele
750 m
Ospedale Oncologico "Armando Businco"
780 m
Pronto Soccorso
860 m
Ospedale Santissima Trinità
2,1 Km
Supermercati Supermercati
EuroSpin
290 m
Conad
540 m
Conad Superstore
940 m
Super Pan
1,1 Km
Gieffe
1,3 Km
Negozi Negozi
Market e Panificio
1,9 Km
Metà
2,0 Km
L'angolo dei sapori
2,4 Km
Pizzeria Forno Napoletano
2,5 Km
I Cherchi
2,6 Km
Bar Bar
Bar Lobina
1,5 Km
Bar
1,5 Km
Bar Nobel
2,4 Km
Alex Bar
2,5 Km
Red Rocks cafe
2,5 Km
Ristoranti Ristoranti
Evelyn Pizza
790 m
Quadrifoglio Restaurant
1,1 Km
Ristoranti
1,1 Km
Il Volo
1,1 Km
Pizzeria Evolution 2
1,8 Km
Mostra tutto

Caratteristiche

Rif.:
61174172
Piano:
Terra con giardino di 2
Totale piani:
2
Posti auto:
1
Camere da letto:
3
Arredamento:
Assente
Mostra tutto
Prezzo Prezzo
€ 280.000
Rata mutuo Rata mutuo
€ 1.327 / mese
Spese annue Spese annue
€ 0
Proponi il tuo prezzoProponi il tuo prezzo

Classe Energetica

A4
A4
A4
A4
A4
A4
A4
A4
A4
EP invernale del fabbricato:
EP estiva del fabbricato:
Anno di costruzione:
2026
Riscaldamento:
Autonomo
Tipo impianto:
A radiatori
Tipo alimentazione:
Pannelli

Ti interessa visionare l'immobile?

Fissa un appuntamento  Fissa un appuntamento

Richiedi informazioni

Clicca su Leggi per aprire l'informativa
* Questi campi sono obbligatori

Calcola il tuo mutuo

Semplice e senza impegno
Anticipo

( % )
Mutuo

( % )

pochi semplici passi

inserisci i tuoi dati
Questionario completato
Grazie per aver richiesto un appuntamento senza impegno con un nostro Consulente del Credito e Assicurativo.

Hai inserito correttamente tutti i dati necessari e a breve riceverai una e-mail con un link da convalidare per inviare i tuoi dati.
Affiliato
La Collina Mediazioni Srl
Via Chiesa, 2 09134 Cagliari (CA)

Il nostro staff


  • Laura Francesca Bovenzi
    Collaboratrice

  • Beatrice Desogus
    Collaboratrice

  • Giorgia Locci
    Coordinatrice

  • Michele Medau
    Collaboratore

  • Annamaria Solinas
    Collaboratrice

  • Daniel Medau
    Affiliato
Via Chiesa, 2 09134 Cagliari (CA)
Zona: Barraccamanna is Corrias
Mostra su mappa
Affiliato
La Collina Mediazioni Srl
Via Chiesa, 2 09134 Cagliari (CA)

2026 Tecnocasa Franchising S.p.A. - P. IVA 08365160152 - Via Monte Bianco 60/A 20089 Rozzano (MI). Ogni agenzia ha un proprio titolare ed è autonoma. Privacy policy | Policy utilizzo | Cookie policy