Trifamiliare in vendita

Fluminimaggiore, Località Marcarius
€ 300.000
13 locali 13 locali
531 Mq 531 Mq
3 bagni 3 bagni

Trifamiliare in vendita

Fluminimaggiore, Località Marcarius

Descrizione annuncio

Tecnocasa Barracca Manna:

Ci troviamo in posizione panoramica e riservata a Fluminimaggiore, precisamente in Località Portixeddu, a breve distanza dal mare e immersa nella natura incontaminata.

Proponiamo in vendita una villa indipendente circondata da un importante lotto di terreno di circa 7.000 mq.

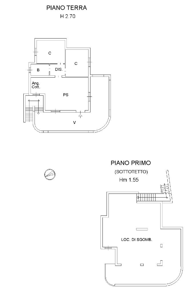
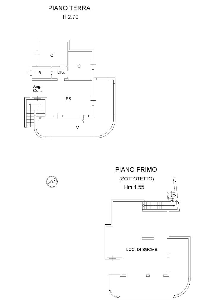
La proprietà, edificata nel 1987, si sviluppa come corpo unico ma risulta catastalmente frazionata in più unità, garantendo un'ottima versatilità di gestione. L'immobile è così composto:

Un appartamento al piano terra sul lato sinistro, servito da una terrazza a livello (questa porzione necessita di interventi di ristrutturazione);

Un appartamento nella porzione centrale, articolato su due livelli;

Un appartamento situato al primo piano.

Sulla porzione destra dell'edificio troviamo inoltre un'unità attualmente adibita ad autorimessa con ampia terrazza antistante, ideale per essere valorizzata.

Completano la soluzione il grande parco privato che garantisce privacy assoluta, vista aperta sul paesaggio e la possibilità di creare zone relax o percorsi verdi.

Questa soluzione è ideale per investitori che desiderano avviare un’attività di B&B o struttura ricettiva sfruttando la vicinanza alle spiagge, oppure per più nuclei familiari alla ricerca di una residenza estiva condivisa ma indipendente.

Contattaci per fissare la tua visita.

Tecnocasa Barraccamanna – Is Corrias
La Collina Mediazioni srl – Via Chiesa 2, Cagliari

Tel: 3514778015
Email:

Mostra tutto

Nelle vicinanze

Supermercati Supermercati
Agriturismo Fighezia
2,1 Km
Bar Bar
Didobeach
2,8 Km
Ristoranti Ristoranti
Trattoria del Sole e della Luna
970 m
Bora Bora
2,0 Km
Agriturismo Fighezia
2,1 Km
Mostra tutto

Caratteristiche

Rif.:
61158698
Piano:
2 di 2 (Piano su più livelli)
Box:
1
Posti auto:
3
Balconi:
2
Terrazzi:
2
Mostra tutto
Prezzo Prezzo
€ 300.000
Rata mutuo Rata mutuo
€ 1.422 / mese
Spese annue Spese annue
€ 0
Proponi il tuo prezzoProponi il tuo prezzo

Classe Energetica

G
G
G
G
G
G
G
G
G
EP invernale del fabbricato:
EP estiva del fabbricato:
Anno di costruzione:
1987
Riscaldamento:
Autonomo
Tipo impianto:
Ad aria
Tipo alimentazione:
Altro

Ti interessa visionare l'immobile?

Fissa un appuntamento  Fissa un appuntamento

Richiedi informazioni

Clicca su Leggi per aprire l'informativa
* Questi campi sono obbligatori

Calcola il tuo mutuo

Semplice e senza impegno
Anticipo

( % )
Mutuo

( % )

pochi semplici passi

inserisci i tuoi dati
Questionario completato
Grazie per aver richiesto un appuntamento senza impegno con un nostro Consulente del Credito e Assicurativo.

Hai inserito correttamente tutti i dati necessari e a breve riceverai una e-mail con un link da convalidare per inviare i tuoi dati.
Affiliato
La Collina Mediazioni Srl
Via Chiesa, 2 09134 Cagliari (CA)

Il nostro staff


  • Laura Francesca Bovenzi
    Collaboratrice

  • Beatrice Desogus
    Collaboratrice

  • Giorgia Locci
    Coordinatrice

  • Michele Medau
    Collaboratore

  • Annamaria Solinas
    Collaboratrice

  • Daniel Medau
    Affiliato
Via Chiesa, 2 09134 Cagliari (CA)
Zona: Barraccamanna is Corrias
Mostra su mappa
Affiliato
La Collina Mediazioni Srl
Via Chiesa, 2 09134 Cagliari (CA)

2026 Tecnocasa Franchising S.p.A. - P. IVA 08365160152 - Via Monte Bianco 60/A 20089 Rozzano (MI). Ogni agenzia ha un proprio titolare ed è autonoma. Privacy policy | Policy utilizzo | Cookie policy