Trilocale in vendita

Iglesias, Via Cesare Battisti
€ 67.000
3 locali 3 locali
62 Mq 62 Mq
1 bagno 1 bagno

Trilocale in vendita

Iglesias, Via Cesare Battisti

Descrizione annuncio

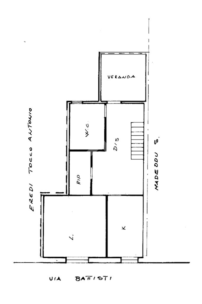
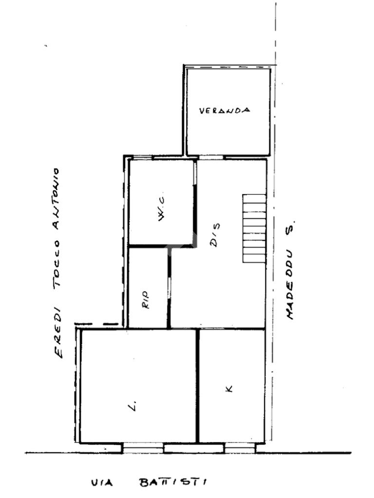
Iglesias – Via Cesare Battisti 34

In una zona centrale e ben servita di Iglesias, proponiamo in vendita un appartamento situato al secondo e ultimo piano di un piccolo contesto abitativo.

L’abitazione ha una superficie di circa 60 mq ed è composta da ingresso su soggiorno, ambiente luminoso valorizzato dalla presenza di un lucernaio, una cucina separata con accesso a un balconcino, una camera matrimoniale, una cameretta e un ampio bagno finestrato dotato di box doccia.

L’appartamento si presenta in buone condizioni, grazie a recenti interventi di ristrutturazione, ed è pronto per essere abitato senza necessità di lavori immediati.

Gli infissi sono in alluminio con doppio vetro, completi di zanzariere e doppia finestra, di cui quella esterna è dotata di alette orientabili per la schermatura solare, garantendo comfort e isolamento.

Dal punto di vista impiantistico, la soluzione è dotata di split per la climatizzazione caldo/freddo e di stufa a pellet, ideale per il riscaldamento durante il periodo invernale.

Grazie alla disposizione funzionale degli spazi, alla luminosità e alla posizione strategica, l’immobile rappresenta una soluzione ideale sia come abitazione principale sia come investimento locativo.

IMMOBILE NON MUTUABILE.

Per ulteriori informazioni o per fissare una visita, restiamo a disposizione.

Tecnocasa Barraccamanna – Is Corrias
La Collina Mediazioni srl – Via Chiesa 2, Cagliari

Tel: 3514778015
Email:

Mostra tutto

Nelle vicinanze

Trasporto pubblico Trasporto pubblico
stazione di Iglesias
stazione di Iglesias
850 m
Iglesias
Iglesias
870 m
Scuole Scuole
Scuole Medie
240 m
Istituto Tecnico Industriale Minerario
250 m
Scuola Elementare Femminile
330 m
Scuole Elementari Maschili
350 m
Istituzione Paritaria Scuole Boccaccio
450 m
Farmacia Farmacia
Farmacia Santa Barbara
440 m
FARMACIA SOLLAI DR. BRUNO
570 m
Farmacia
580 m
Farmacia Spada
600 m
Locci Francesca
640 m
Ospedali Ospedali
Ospedale C.T.O.
470 m
Pronto Soccorso Ospedale C.T.O
520 m
Ospedale Santa Barbara
950 m
Ospedale Fratelli Crobu
1,9 Km
Supermercati Supermercati
Supermercati Amelia Pam
350 m
Supermercati
630 m
Amelia PAM
680 m
Conad Superstore
1,7 Km
Super Pan
1,7 Km
Negozi Negozi
La Bottega del Gusto
120 m
Panetteria Salumeria
540 m
PAM
550 m
Panificio Vargiu
580 m
C&C
1,3 Km
Bar Bar
Electra Cafè
550 m
Carpe Diem
720 m
Bar Tabaccheria da Silvestro
810 m
Hazard
1,2 Km
Ristoranti Ristoranti
Oasis
450 m
Villa di Chiesa
500 m
Sa Matracca
510 m
Volters & Murion
560 m
Ristorante Gazebo Medioevale
620 m
Mostra tutto

Caratteristiche

Rif.:
61156298
Piano:
2 di 2 (ultimo Piano)
Balconi:
1
Camere da letto:
2
Arredamento:
Parziale
Condizionamento:
Autonomo
Mostra tutto
Prezzo Prezzo
€ 67.000
Rata mutuo Rata mutuo
€ 318 / mese
Spese annue Spese annue
€ 0
Proponi il tuo prezzoProponi il tuo prezzo

Classe Energetica

G
G
G
G
G
G
G
G
G
EP invernale del fabbricato:
EP estiva del fabbricato:
Anno di costruzione:
1995
Riscaldamento:
Autonomo
Tipo impianto:
A stufa
Tipo alimentazione:
Altro

Ti interessa visionare l'immobile?

Fissa un appuntamento  Fissa un appuntamento

Richiedi informazioni

Clicca su Leggi per aprire l'informativa
* Questi campi sono obbligatori

Calcola il tuo mutuo

Semplice e senza impegno
Anticipo

( % )
Mutuo

( % )

pochi semplici passi

inserisci i tuoi dati
Questionario completato
Grazie per aver richiesto un appuntamento senza impegno con un nostro Consulente del Credito e Assicurativo.

Hai inserito correttamente tutti i dati necessari e a breve riceverai una e-mail con un link da convalidare per inviare i tuoi dati.
Affiliato
La Collina Mediazioni Srl
Via Chiesa, 2 09134 Cagliari (CA)

Il nostro staff


  • Laura Francesca Bovenzi
    Collaboratrice

  • Beatrice Desogus
    Collaboratrice

  • Giorgia Locci
    Coordinatrice

  • Michele Medau
    Collaboratore

  • Annamaria Solinas
    Collaboratrice

  • Daniel Medau
    Affiliato
Via Chiesa, 2 09134 Cagliari (CA)
Zona: Barraccamanna is Corrias
Mostra su mappa
Affiliato
La Collina Mediazioni Srl
Via Chiesa, 2 09134 Cagliari (CA)

2026 Tecnocasa Franchising S.p.A. - P. IVA 08365160152 - Via Monte Bianco 60/A 20089 Rozzano (MI). Ogni agenzia ha un proprio titolare ed è autonoma. Privacy policy | Policy utilizzo | Cookie policy